
de 2 à 5 personnes
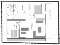
En rez de jardin, grande terrasse aménagée sur parc.
Séjour avec TV, cuisine ouverte et équipée toutes commodités
1 chambre avec 1 grand lit (160x200cm+ 1 lit 90x190cm)
1 chambre avec 2 lits (90x190cm)
1 salle de bain avec douche, lavabo, WC, sèche-cheveux, lave-linge (draps et serviettes de bain fournis).
Lits faits à l'arrivée avec draps fournis.
Equipement pour bébé : Mixer, chaise bébé, lit parapluie, baignoire.
Charges eau, électricité, chauffage et ménage compris dans la location.
Gîte rural n°254003

 |